04/12/2013 - 1-Espacio Polifuncional en Pje Gorriti - Costa Azul (36 votos)
Distrito: Este
Seccion 1
Plazo de Ejecución: Asignado 2014/2015
Monto Total: asignado $180.000
04/12/2013 - 1-Espacio Polifuncional en Pje Gorriti - Costa Azul (36 votos)
Distrito: Este
Seccion 1
Plazo de Ejecución: Asignado 2014/2015
Monto Total: asignado $180.000

Nos reunimos con los vecinos para acordar diseño y funcionalidad del SUM (Salon de Usos Multiples) ubicado en Av. Bach y Pje. Gorriti.

Luego de supervisar las especificaciones tecnicas con la Direccion de Obras Publicas, areas de ingenieria, se realizaran los pliegos para el llamado a concurso publico para su construccion.-

El Centro Vecinal de B° Costa Azul se encargaria de los materiales.

Este proyecto fue elegido por los vecinos en el programa Presupuesto Participativo 2013-2014. El proyecto no cuenta con viabilidad de ser realizado, ya que por dispocision del departamento policial se establece la imposibilidad de abrir una posta policial en dicho espacio

 

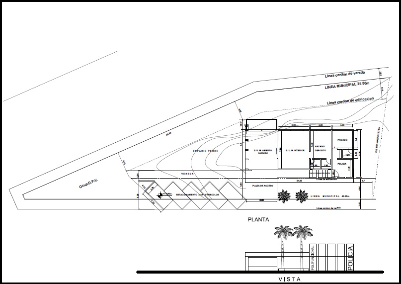
ANTEPROYECTO POLIFUNCIONAL COSTA AZUL

 MEMORIA DESCRIPTIVA

Ubicación: Lotes 19 de la manzana 9, calle Juan S. Bach, del barrio Costa Azul, en la ciudad de Villa Carlos Paz. Superficie: 1009m2

El presente emprendimiento se encuentra en el extremo este de la ciudad, en el camino donde la ruta bordea al lago dirigiéndose al dique.

La geometría del espacio físico del lote presenta una forma triangular aguda en punta hacia el norte y con una pendiente muy pronunciada hacia el este, tanto asi que la misma calle se encuentra con una gran diferencia de altura entre ambos frentes del predio.

 

La topografía del terreno, las proporciones del espacio, el código de edificación y la ocupación con construcción del vecino lote 18 condicionan considerablemente al emplazamiento de la obra, dando como resultado una área limitada sobre la cual se proyectara el edificio para los requerimientos barriales de oficina policial y centro vecinal para actividades comunales: POLIFUNCIONAL COSTA AZUL

 

PREMISAS DE DISEÑO

Funcionales:

Por un lado: cubrir con las necesidades espaciales para albergar actividades culturales y recreativas, tales como físicas, teatrales, musicales, corales, reuniones vecinales, etc.y los anexos de servicio para apoyo de estas actividades; por otro lado una dependencia policial para descentralizar funciones de la comisaría local.

Arquitectura:

Dos espacios para usos multiples con proporciones y dimensiones que se ajustan a la escala de la cantidad de usuarios y programa de actividades:

Espacio interior: salón polifuncional que se ajuste a los requerimientos espaciales para actividades mencionadas donde se pueda adaptar equipamiento móvil como sillas, proyectores, tarimas, y fijo como barras en las paredes, espejos, etc.

Espacio exterior para los mismos requerimientos pero al aire libre y techado, para la posibilidad de expandirse al exterior con las mismas funciones y con el aprovechamiento potencial del lugar en cuanto a las vistas y a la orientación.

Todas estas actividades estarían apoyadas por un area de servicios para necesidades sanitarias y de deposito de equipamiento de apoyo y/o archivo.

Se organiza dentro del predio un ordenamiento estructurado para los vehículos para evitar la ocupación de la calzada justamente en un sector de la ruta que se presenta angosta con un giro importante y poca visibilidad.

Con respecto al edificio para la policía, si bien se encuentra dentro del mismo grupo arquitectónico están independizados funcionalmente con su propio movimiento de gente estable y visitante, manteniendo el mismo lenguaje espacial y arquitectónico.

Parque:

Los desniveles son parte fundamental de este proyecto, y significan un aporte muy rico en cuanto al diseño del espacio exterior, donde se proyectaran grupos de bancos para merendero, equipamiento de servicio con cestos de basura, columnas de iluminación, y vegetación ordenada.

 Materiales:

Bajo mantenimiento de las instalaciones es la premisa fundamental para la elección de los materiales, por eso los elementos arquitectónicos se proponen con materiales que se encuentran fácilmente en el mercado y que no requieren mano de obra especializada para su montaje y ejecución.

Se compartió el diseño Anteproyecto con los vecinos y luego de varios acuerdos de realizó el diseño definitivo.Se articula la revisión con el área de ingenieria del Departamento de Obras Públicas quienes definen junto al equipo técnico del PP las especificaciones técnicas de la construcción de la obra.

 

 

 

Nos reunimos con los vecinos para acordar diseño y funcionalidad del SUM (Salon de Usos Multiples) ubicado en Av. Bach y Pje. Gorriti. Luego de supervisar las especificaciones tecnicas con la Direccion de Obras Publicas, areas de ingenieria, se realizaran los pliegos para el llamado a concurso publico para su construccion.- El Centro Vecinal de B° Costa Azul se encargaria de los materiales. Este proyecto fue elegido por los vecinos en el programa Presupuesto Participativo 2013-2014. El proyecto no cuenta con viabilidad de ser realizado, ya que por dispocision del departamento policial se establece la imposibilidad de abrir una posta policial en dicho espacio   ANTEPROYECTO POLIFUNCIONAL COSTA AZUL  MEMORIA DESCRIPTIVA Ubicación: Lotes 19 de la manzana 9, calle Juan S. Bach, del barrio Costa Azul, en la ciudad de Villa Carlos Paz. Superficie: 1009m2 El presente emprendimiento se encuentra en el extremo este de la ciudad, en el camino donde la ruta bordea al lago dirigiéndose al dique. La geometría del espacio físico del lote presenta una forma triangular aguda en punta hacia el norte y con una pendiente muy pronunciada hacia el este, tanto asi que la misma calle se encuentra con una gran diferencia de altura entre ambos frentes del predio.   La topografía del terreno, las proporciones del espacio, el código de edificación y la ocupación con construcción del vecino lote 18 condicionan considerablemente al emplazamiento de la obra, dando como resultado una área limitada sobre la cual se proyectara el edificio para los requerimientos barriales de oficina policial y centro vecinal para actividades comunales: POLIFUNCIONAL COSTA AZUL   PREMISAS DE DISEÑO Funcionales: Por un lado: cubrir con las necesidades espaciales para albergar actividades culturales y recreativas, tales como físicas, teatrales, musicales, corales, reuniones vecinales, etc.y los anexos de servicio para apoyo de estas actividades; por otro lado una dependencia policial para descentralizar funciones de la comisaría local. Arquitectura: Dos espacios para usos multiples con proporciones y dimensiones que se ajustan a la escala de la cantidad de usuarios y programa de actividades: Espacio interior: salón polifuncional que se ajuste a los requerimientos espaciales para actividades mencionadas donde se pueda adaptar equipamiento móvil como sillas, proyectores, tarimas, y fijo como barras en las paredes, espejos, etc. Espacio exterior para los mismos requerimientos pero al aire libre y techado, para la posibilidad de expandirse al exterior con las mismas funciones y con el aprovechamiento potencial del lugar en cuanto a las vistas y a la orientación. Todas estas actividades estarían apoyadas por un area de servicios para necesidades sanitarias y de deposito de equipamiento de apoyo y/o archivo. Se organiza dentro del predio un ordenamiento estructurado para los vehículos para evitar la ocupación de la calzada justamente en un sector de la ruta que se presenta angosta con un giro importante y poca visibilidad. Con respecto al edificio para la policía, si bien se encuentra dentro del mismo grupo arquitectónico están independizados funcionalmente con su propio movimiento de gente estable y visitante, manteniendo el mismo lenguaje espacial y arquitectónico. Parque: Los desniveles son parte fundamental de este proyecto, y significan un aporte muy rico en cuanto al diseño del espacio exterior, donde se proyectaran grupos de bancos para merendero, equipamiento de servicio con cestos de basura, columnas de iluminación, y vegetación ordenada.  Materiales: Bajo mantenimiento de las instalaciones es la premisa fundamental para la elección de los materiales, por eso los elementos arquitectónicos se proponen con materiales que se encuentran fácilmente en el mercado y que no requieren mano de obra especializada para su montaje y ejecución. Se compartió el diseño Anteproyecto con los vecinos y luego de varios acuerdos de realizó el diseño definitivo.Se articula la revisión con el área de ingenieria del Departamento de Obras Públicas quienes definen junto al equipo técnico del PP las especificaciones técnicas de la construcción de la obra.